ÁTRIOVÝ DŮM PRIEVIDZA, 2021


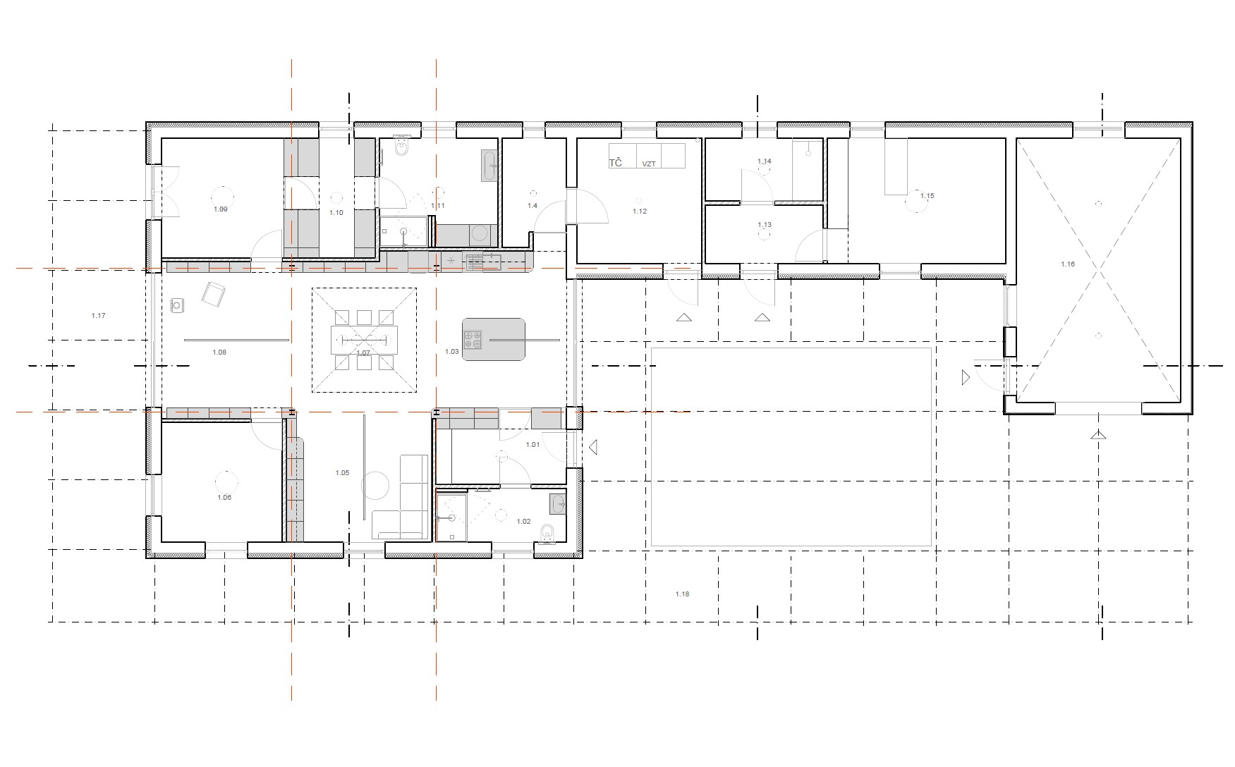
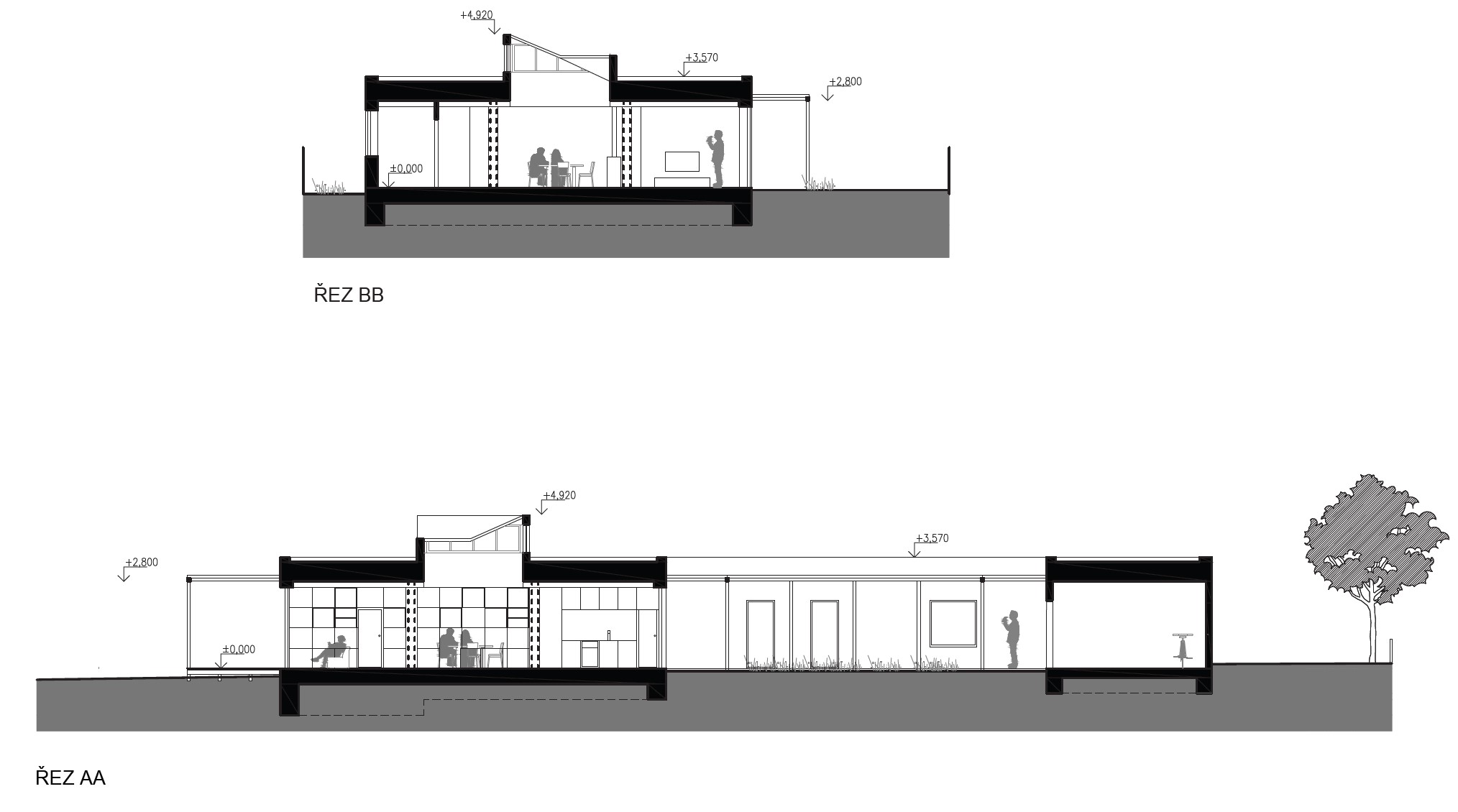
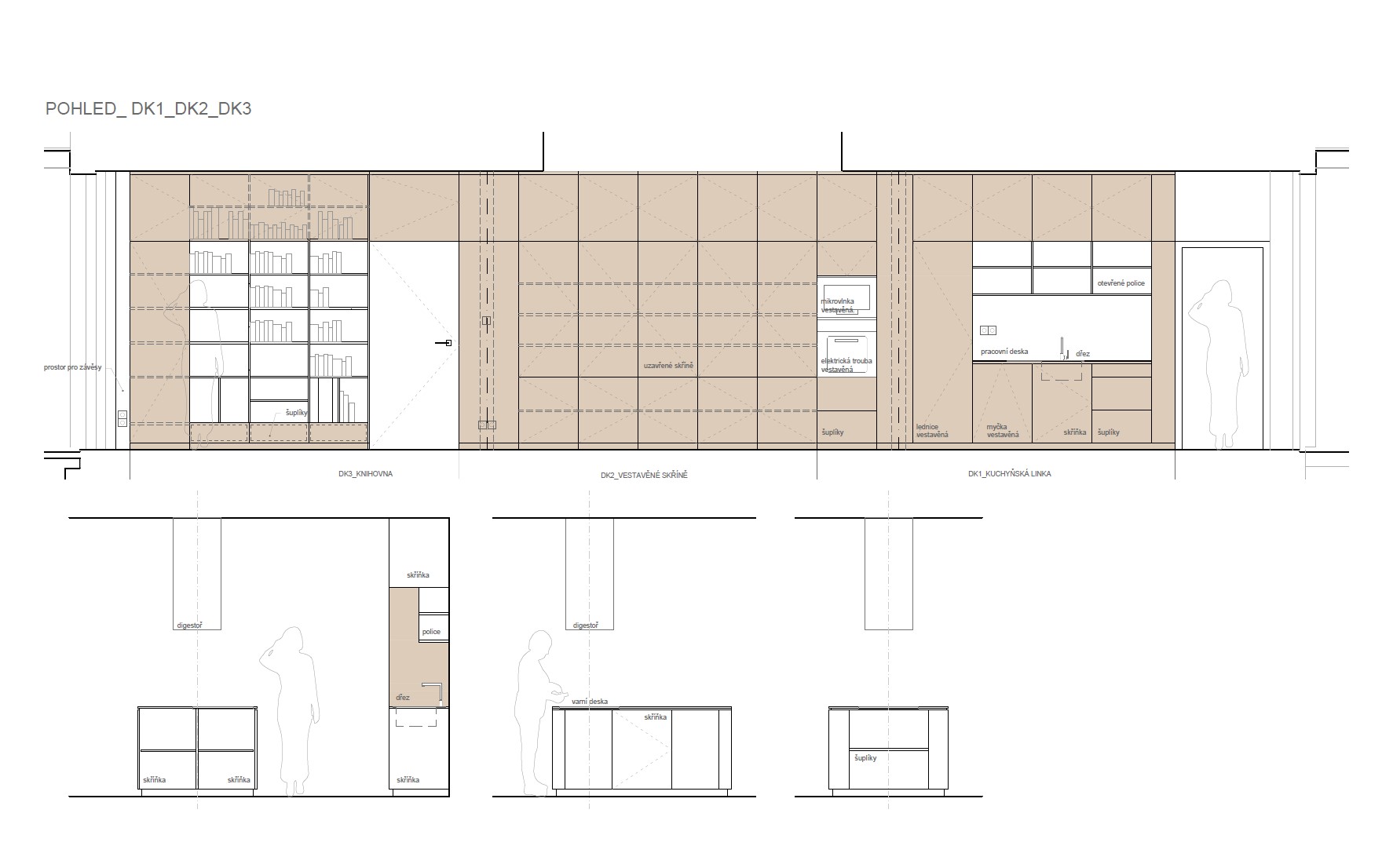
Tento rodinný dům átriového typu je velkorysý, kompaktní, užívá světlík a atrium a pracuje se světlem. Dispozice vychází z uspořádání v rastru čtverců 4x4m. Prostory se tak přirozeně prolínají a vytváří příjemné pobytové zóny bez nadbytečných komunikačních prostor a konstrukcí. Rodinný dům je čtvercový s dominantním světlíkem uprostřed, k němu přiléhá objekt garsonky a garáže. Objekty jsou doplněny o pergoly, plnící funkci jak zastřešení komunikačních a pobytových prostor v zahradě, tak stínění prosklených ploch domu, a však konstrukce objektu je převyšující, dává tak najevo svou přítomnost a dominanci.

SPOLUPRÁCE: H3T architekti

FOTO: David Mackovič


© Atelier HRA. All rights reserved.