DOMŮ
PROJEKTY
O NÁS
TÝM
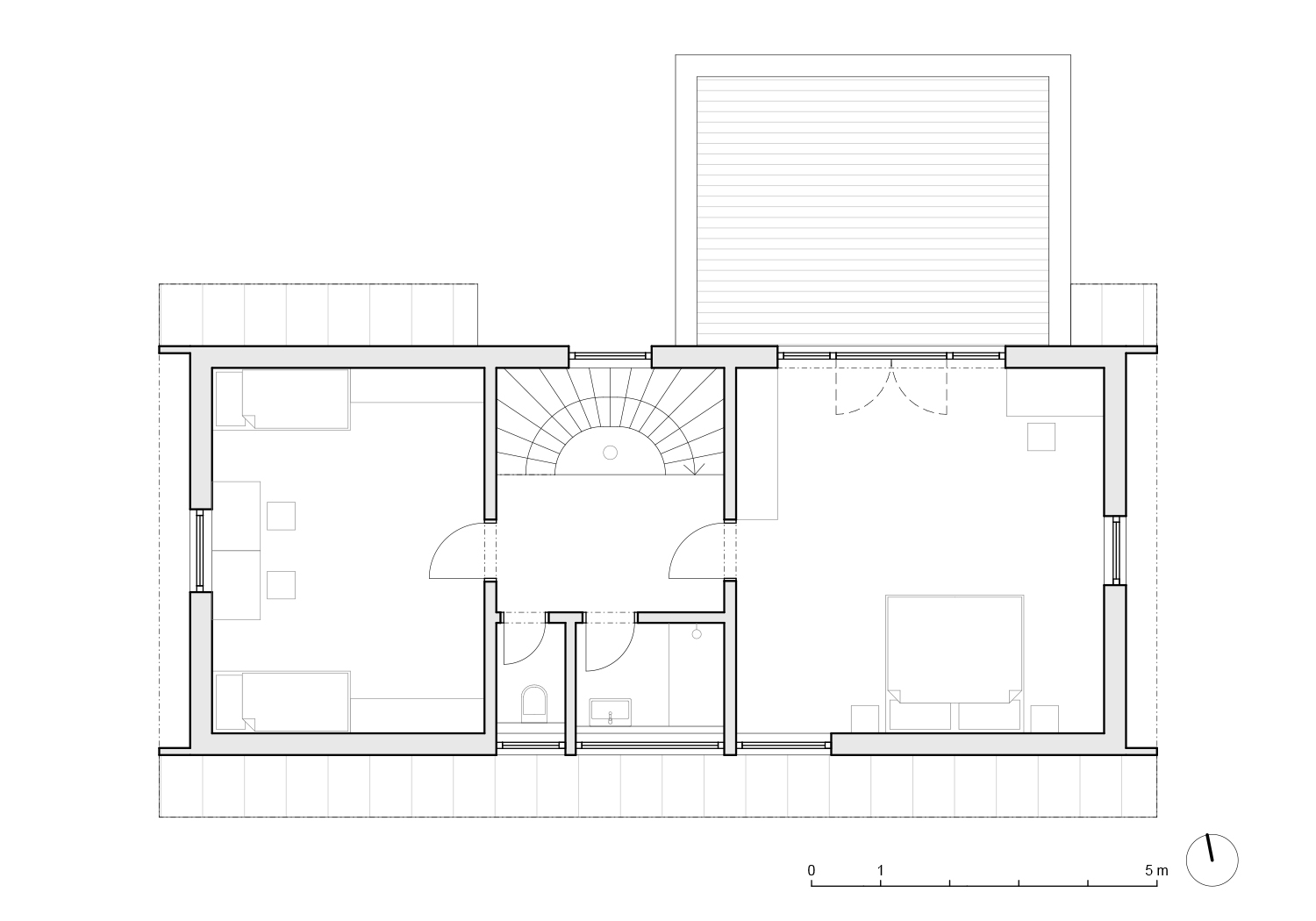
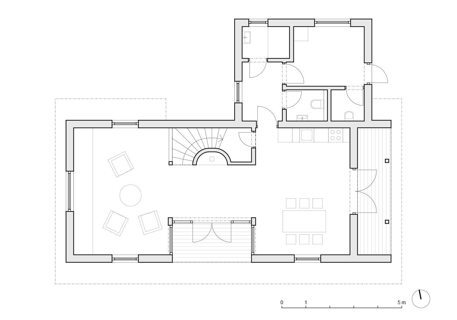
CHATA HRANICE, 2022
© Atelier HRA. All rights reserved.