LESNÍ WELLNESS, 2023


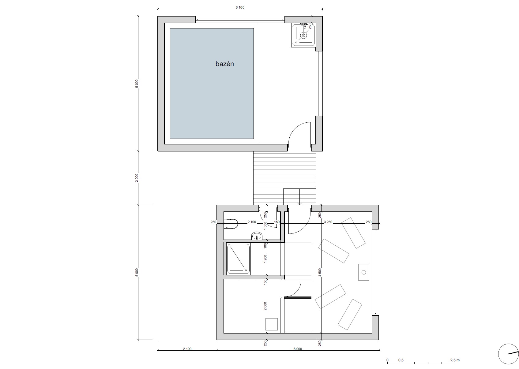
Navrhli jsme lesní wellness s termálním bazénem a relaxčním prostorem pro lesní hotelový areál. Wellness je zasazeno do archetypálního tvaru chatek, které jej obklopují. Nedává se na obdiv, splývá s okolím a po vstupu dovnitř návštěvníka překvapí. V těsné blízkosti jsou navrženy dva objekty, jedna chatka s bazénem, druhá chatka určena k odpočinku a masážím. Funkčně doplňují naši plovoucí saunu Kouty v nedaleké blízkosti.

 

Návrh: ATELIER HRA

Foto: Atelier HRA, Hotel Kouty


© Atelier HRA. All rights reserved.