RD TMAŇ, 2025


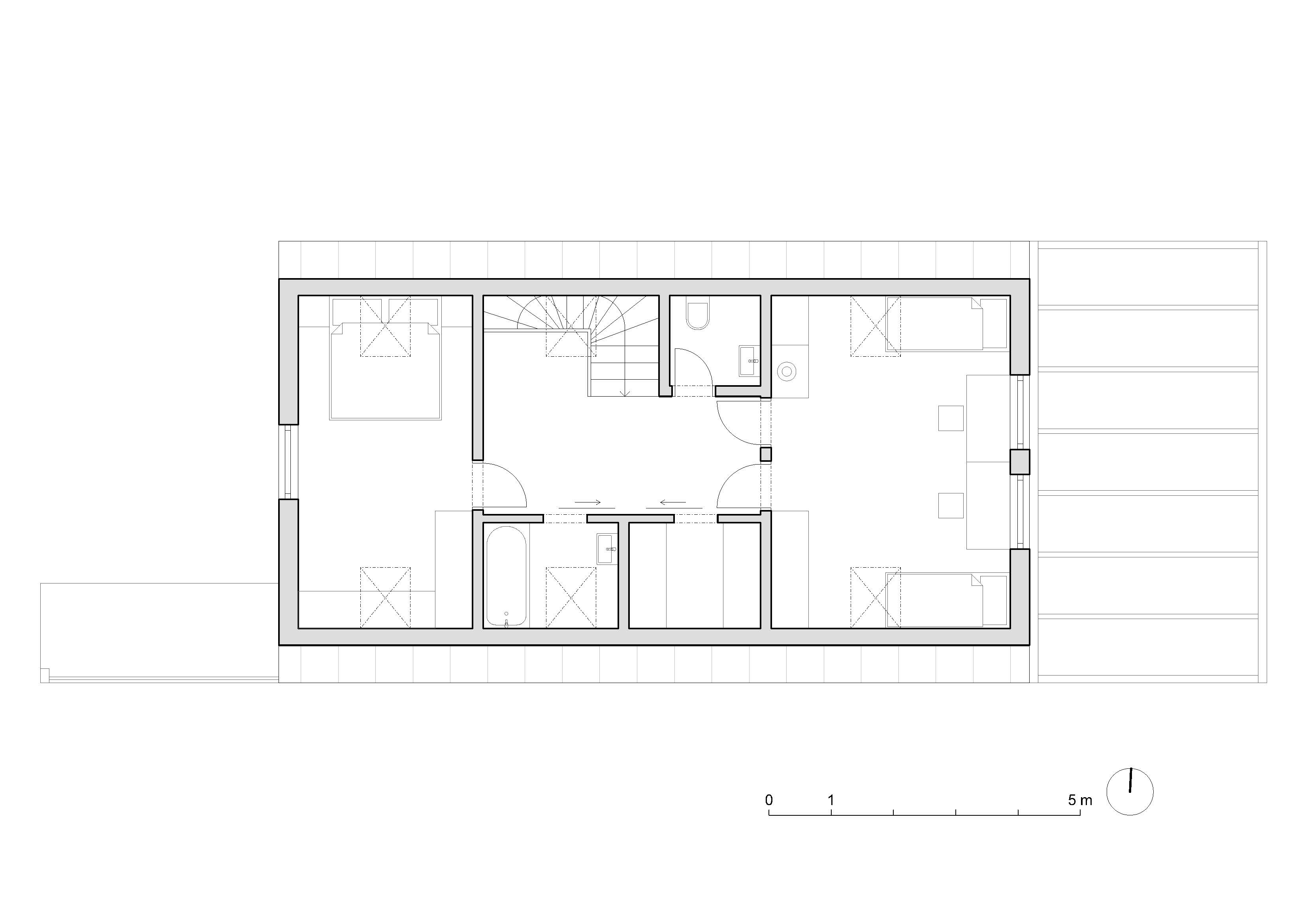
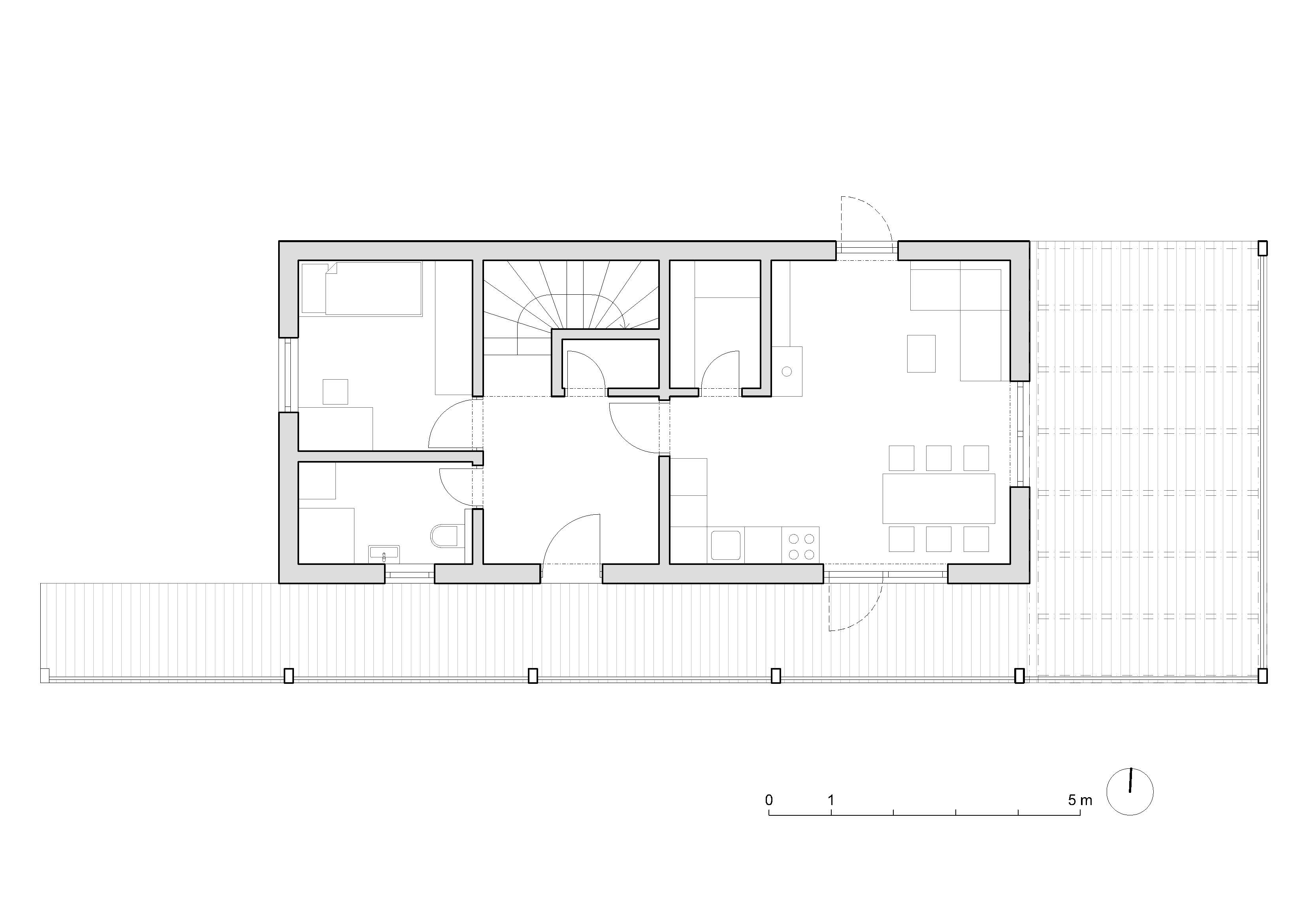
Navrhli jsme dům v lese, kompaktní a ekonomický s jasnou dispozicí. Propojení s exteriérem je v dané lokalitě takřka nutností.

 

                       

Návrh: ATELIER HRA

 


© Atelier HRA. All rights reserved.