RD TUCHOMĚŘICE, 2023


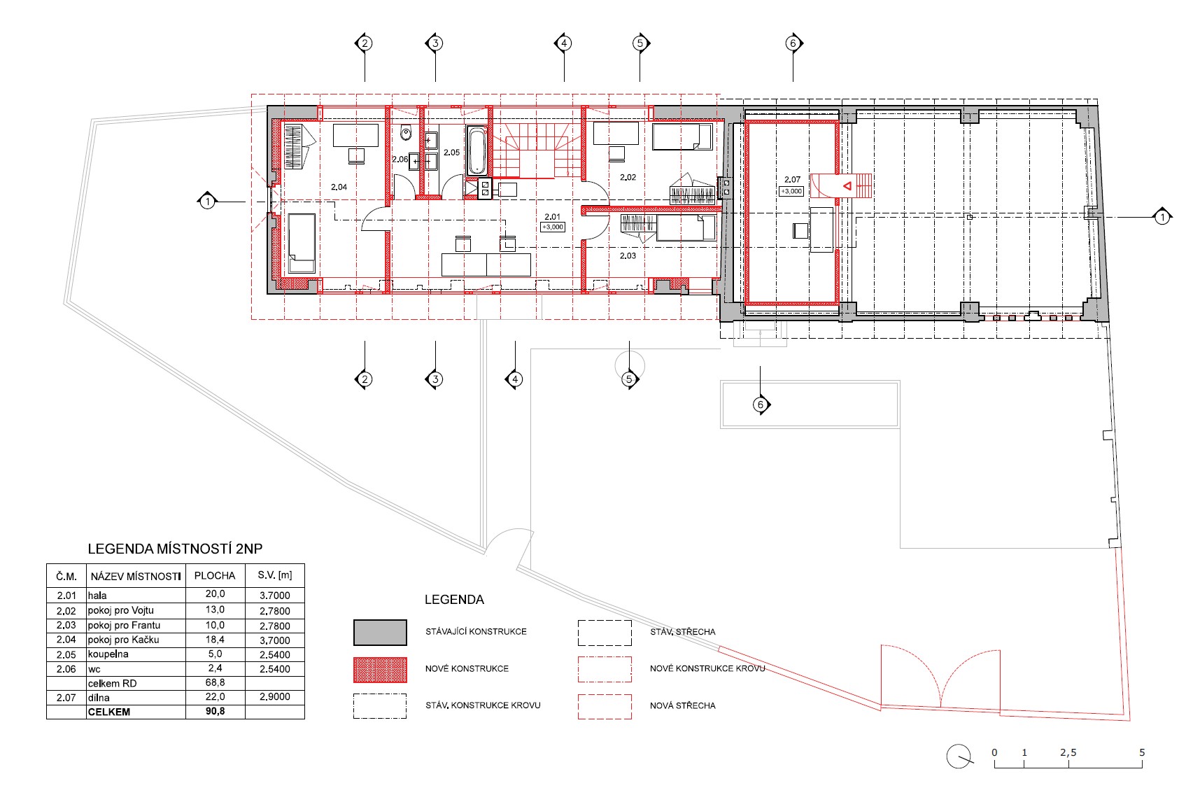
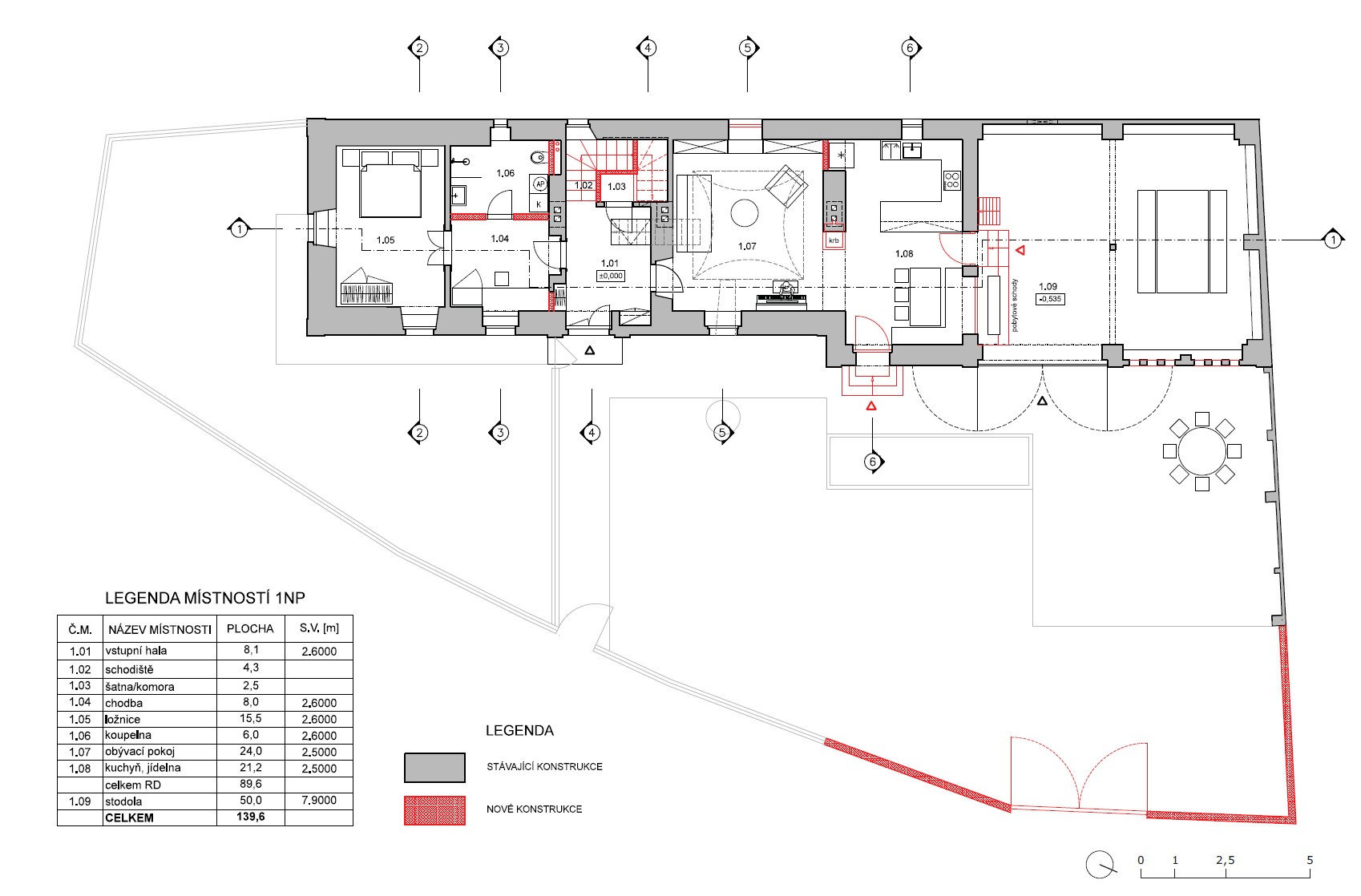
Požadavkem investora bylo zobytnění podkroví a dispoziční úpravy přízemí pro komfortní bydlení pětiíčlenné rodiny. Změny dispozičního řešení přízemí spočívají hlavně v propojení obytné části domu se stodolou a venkovním prostorem. Kuchyň, jídelna a obývak tvoří jeden prostor rozdělený funkčně a vizuálně stěnou s krbem. Z kuchyně-jídelny jsou navřeny nové vstupy do stodoly a nádvoří.

Hlavní objem rodínného domu bude zachován v jeho původním autentickém rázu a doplněn o dva dlouhé vikýře obdélníkového tvaru a moderního vzhledu.

---------------

Návrh: ATELIER HRA

Foto: Ladislav Kubeš

 


© Atelier HRA. All rights reserved.