RD ÚHONICE, 2022


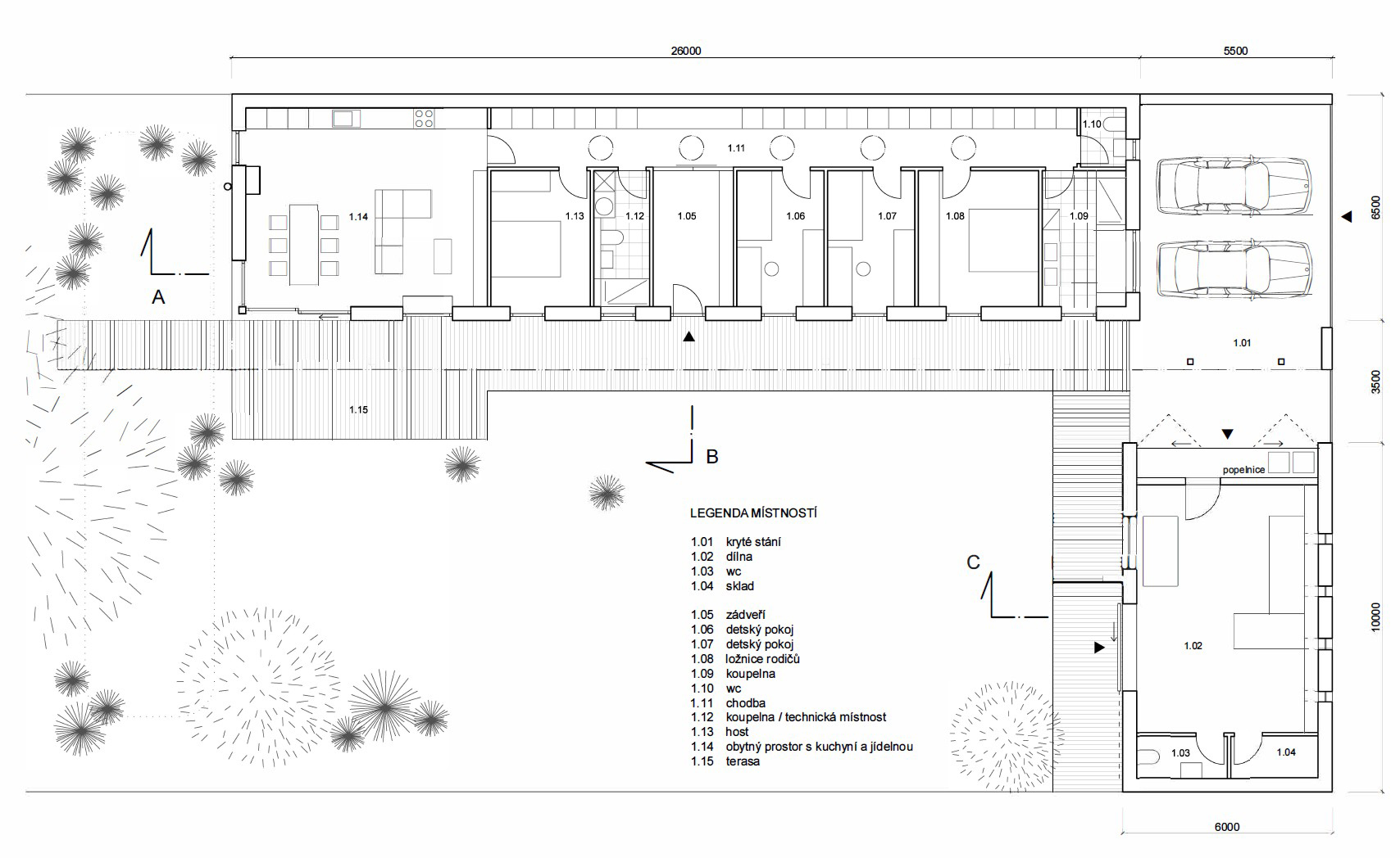
Na pozemku se nachází starší jednopodlažní dům se sedlovou střechou. Tento objekt je určen k demolici a na jeho místě je nově navržen objekt stodoly, který vhodně doplňuje funkční strukturu okolní zástavby a vytváří adekvátní vstupní prostor na pozemek, včetně parkovacích stání pro dvě auta. Samotný rodinný dům je orientován tak, aby pobytové místnosti byly osvětleny ze západu. Na východní straně je objekt umístěn na hranici sousedního pozemku. Je navržen jako jednopodlažní objekt s plochou střechou. Ta je vykonzolovaná před fasádu objektu v celé své délce a vytváří tak kryté závětří s terasou, které zvyšuje hodnotu propojení interiéru a exteriéru. Vstup do objektu je navržen právě z tohoto závětří do středu dispozice. Po levé straně od vstupu je navržen velkorysý obytný prostor s integrovanou funkční kuchyňskou linkou. V návaznosti na něj je navržen pokoj pro hosty s vlastním sociálním zázemím a technickou místností. Po pravé straně od vstupu je pak zóna s ložnicemi a soukromým sociálním zázemím. Celý tento prostor je propojen chodbou vybavenou střešními světlíky a úložnými prostory v celé své délce.


Na zahradě je několik vzrostlých stromů, které se návrh snaží maximálně zachovat. U severní fasády je navržen biotop, který rozděluje zahradu na dvě pobytové zóny - užitkovou a relaxační.

 

                       

Návrh: ATELIER HRA

Návrh zahrady: PARTERO

Realizace: Pavel Kozlíček

Foto: Ladislav Kubeš


© Atelier HRA. All rights reserved.