SOUBOR STAVEB RD, 2024


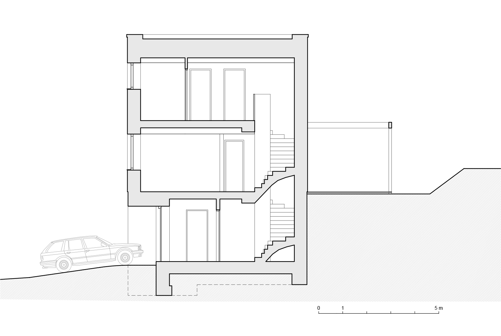
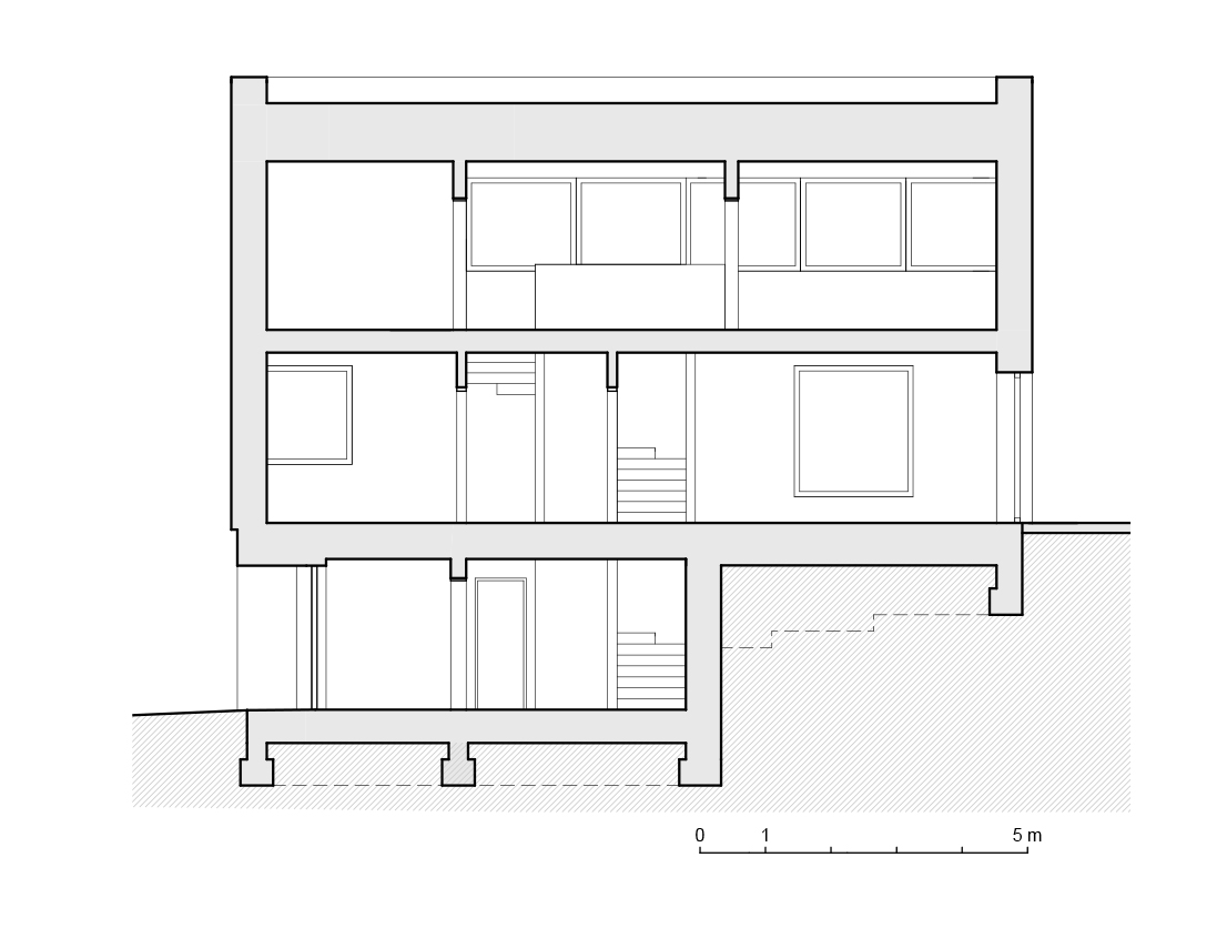
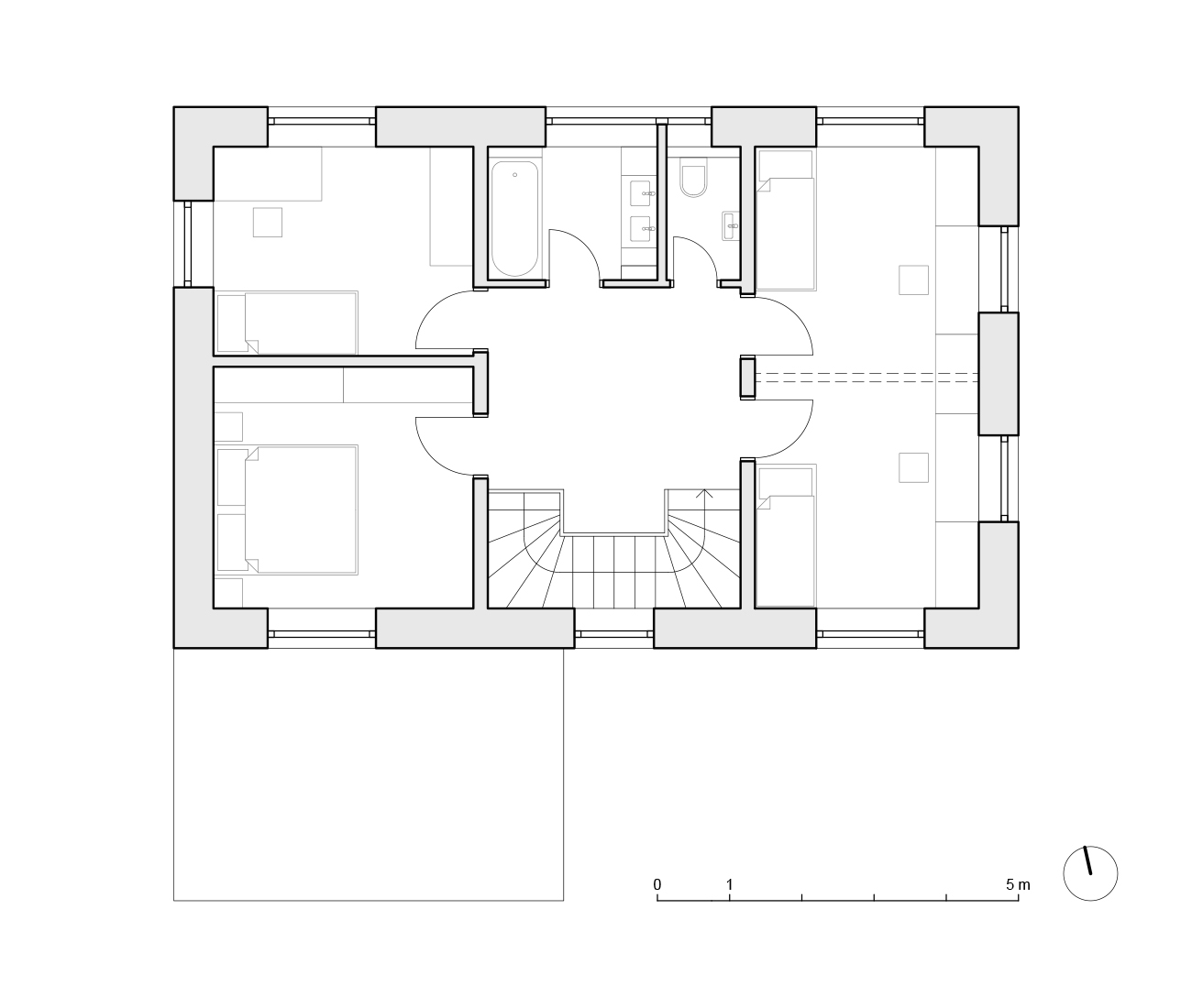
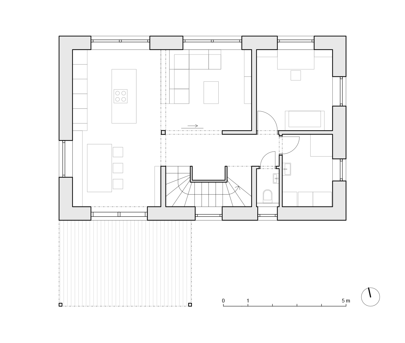
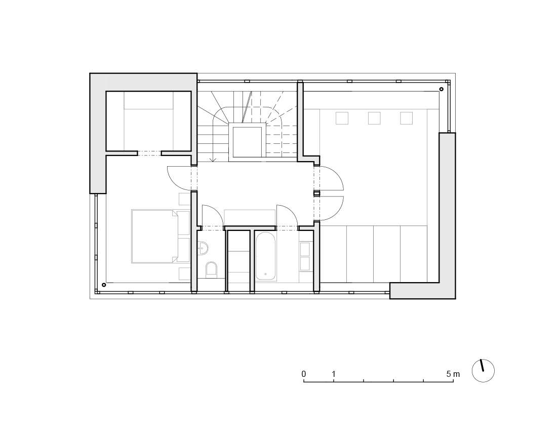
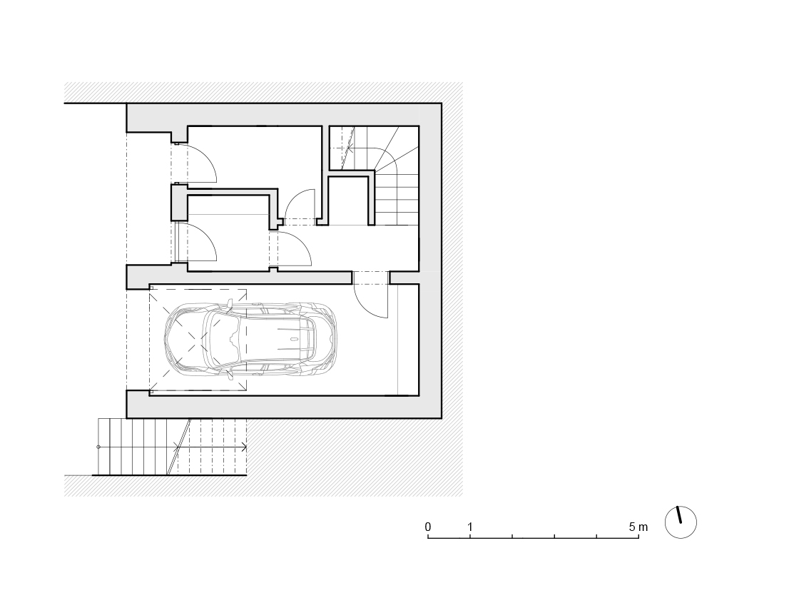
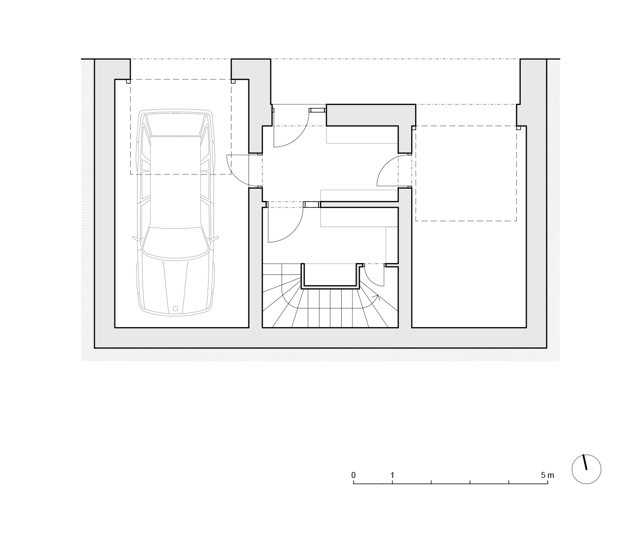
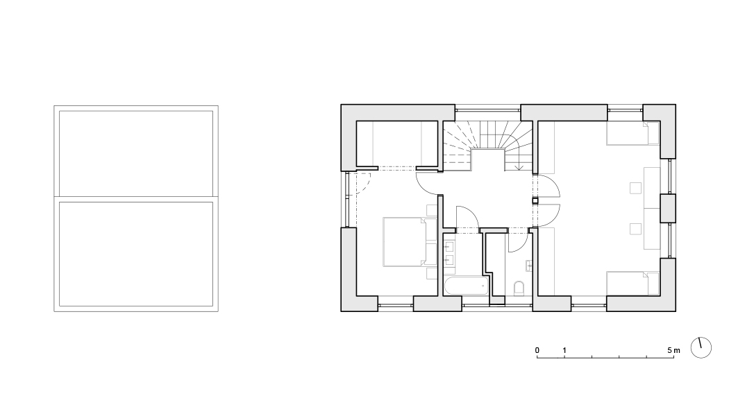
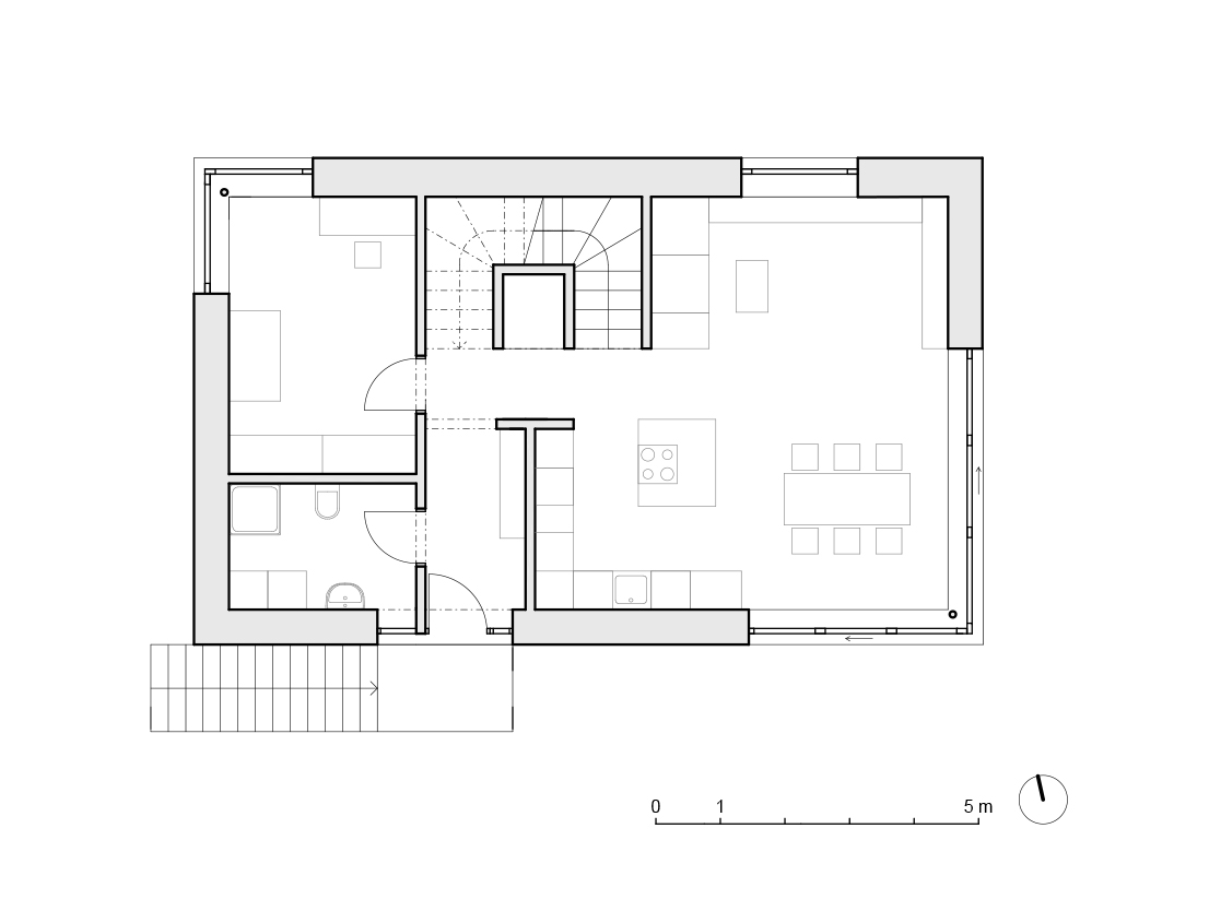
Navrhli jsme tři rodinné domy pro tři kamarády a jejich rodiny ve svažitém pozemku u lesa. Jedná se o dvě dřevostavby a jeden zděný dům. Domy jsme umístili do terénu tak, aby byly naplněny požadavky všech tří rodin a aby každá z nich měla zajištěno soukromí a výhled do jedinečné krajiny. 

 

                       

Návrh: ATELIER HRA

Realizace: CHYTRÝ DŮM s.r.o.

Foto: Ladislav Kubeš, CHYTRÝ DŮM s.r.o.


© Atelier HRA. All rights reserved.