SOUTĚŽ HASIČSKÁ ZBROJNICE V LANŠKROUNĚ, 2022


Návrh zásadně definují funkční a místní vazby, typologické požadavky a souvislosti v provozu hasičské zbrojnice. Dále jsme se při práci snažili najít takovou architektonickou kompozici, která by svébytným způsobem dotvořila prostor města, nabídla současný pohled na fenomén a poskytla část prostoru veřejnému (obecnímu) životu. Navrhujeme tedy kompozici dvou hlavních provozních objektů a prostranství, kterou v druhém plánu doplňuje objekt věže. Architektonický výraz je v souladu s funkční náplní místa. Jemně pracujeme s téměř archetypálními motivy hasičství - voda, zvuk, světlo….


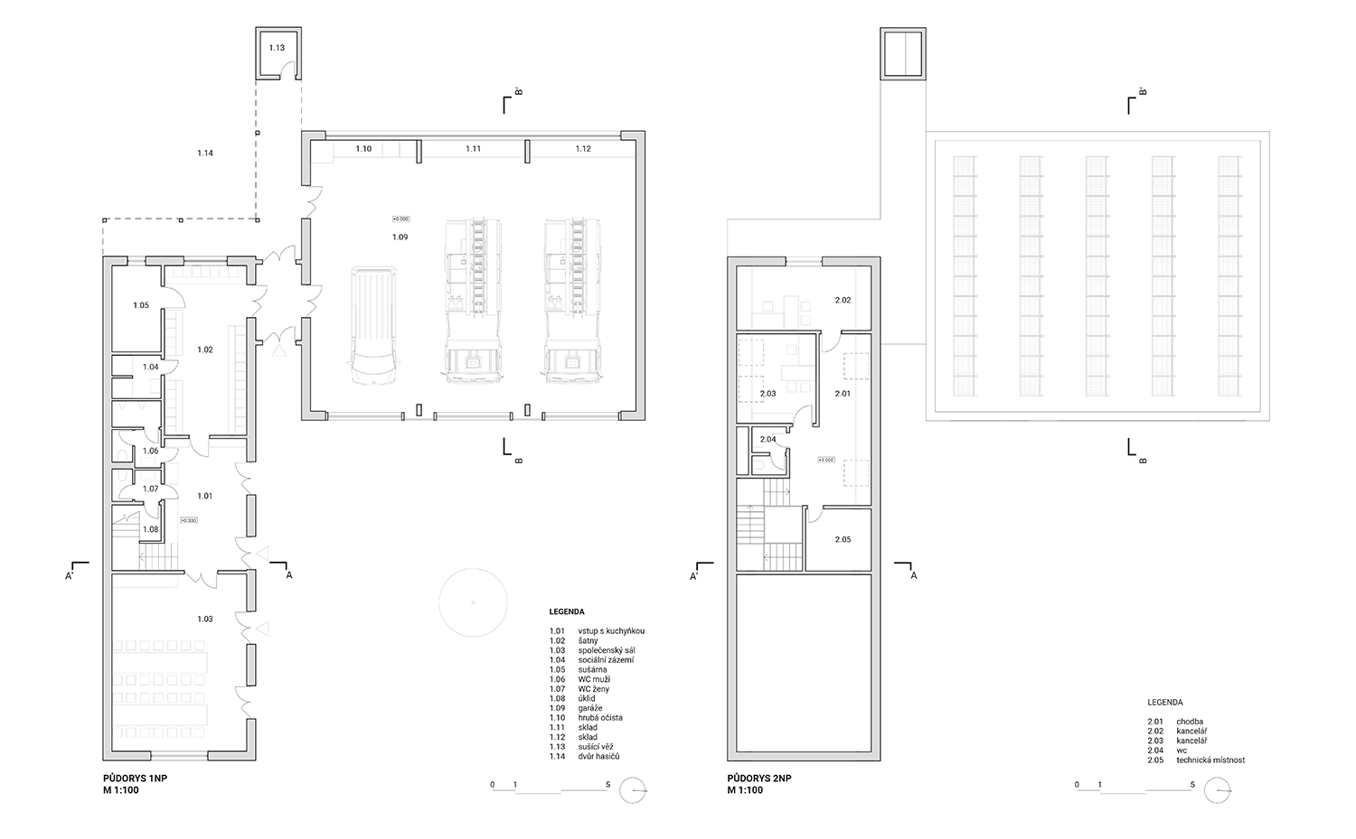
ARCHITEKTONICKÉ ŘEŠENÍ

Celkové řešení vychází z okolního kontextu. Hmotově je stavba rozdělena do dvou vzájemně propojených objektů, zázemí pro hasiče a garáží, doplněna třetí vertikálou věže. Budova se zázemím půdorysně vychází z historické parcelace a formou respektuje objemový kontext. Řešena je jako jednopodlažní se sedlovou střechou a obytným podkrovím. Objekt garáží je jednoduchý kvádr, usazen na pozemku tak, že mezi ním a zázemím hasičů vzniká univerzální plocha sloužící nejen pro manipulaci s vozidly, ale i jako místo pořádání venkovních společenských akcí. Volné prostranství definované garážemi a objektem zázemí vnímáme jako velmi důležitou část návrhu, která by v ideálním případě mohla být “volně přístupná” obyvatelstvu. Ve středu plochy je reliéfní prohlubeň "louže" s vodní tryskou jako symbolika neodmyslitelného propojení hasičů s vodou. Malá vodní tryska v kaluži vody je pouhým osvěžením jinak materiálově monotónní plochy. Vodní prvek samozřejmě není závaznou součástí návrhu.

Místo napojení obou budov tvoří průhled na hasičskou věž na sušení hadic, která zároveň vymezuje prostor zadního dvora hasičů, nabízející určité “neformální” avšak většinou tolik potřebné zázemí. Návrh zachovává pěší průchod parcelou, který je v severní části převeden skrze stávající “neoficiální” výjezd do ulice Dobrovského.

V prostorách garáží jsou situovány sklady spolu s hrubou očistou hasičů. Spojující krček umožňuje pohodlný přístup z exteriéru do garáží, průchod do dvora hasičů a zároveň zachovává přímou vazbu na šatny. V případě požadavku samostatných šaten pro JPO a SDH je možné prostory rozdělit příčkou tak, že bude zachována hygienická smyčka. Ve východní části je situován víceúčelový společenský sál s “barem” a otevřeným podkrovím. Sál má díky proskleným dveřím jasnou vazbu na exteriér a komunikuje s plochou před garážemi, do které se rozšíří v případě konání venkovní akce.


STAVEBNĚ TECHNICKÉ A KONSTRUKČNÍ ŘEŠENÍ

Objekt zázemí

Zděný dům, podélné nosné stěny, dřevěný krov, dřevěná fasáda, skládaná střešní krytina. V interiéru omítky, dřevo, broušený beton na podlaze v přízemí, dřevo v podkroví.

Garáže

Kombinovaný betonový skelet a stěny, dřevěné lepené vazníky jako hlavní nosné prvky střešní kce, povlaková střešní krytina případně osazena vegetační vrstvou kvůli zvýšení retenční kapacity střechy. Interiér - technicistní vzhled, pohledový beton, litý beton, dřevěné vazníky, pozinkovaný plech na prvcích vnitřního vybavení.

Věž

Ocelová pozinkovaná HEB kce na železobetonovém základu, fasáda je tvořena pozinkovaným tahokovem, stejně tak interiér věže.

 

EKONOMICKÁ UDRŽITELNOST OBJEKTU

Navrhujeme jednoduché stavby nenáročné na stavebně-technologické řešení. Samotná realizace je tedy uvažována v odpovídajícím ekonomickém standartu – kategorie III – středně náročné stavby. Samozřejmostí je provozní úspornost celého zařízení zejména nízké náklady na vytápění (případně větrání) a zásobování TUV. Vzhledem ke komplexnosti problematiky bychom ale konkrétní řešení nechali na další fázi projektu. Každý objekt je možné udržovat v jiném teplotním a energetickém režimu odpovídající aktuální potřebě. Na střeše garáží je možné umístit poměrně výkonnou FVE. Dále by bylo možné uvažovat o využití retenční dešťové vody k doplňování nádrží zásahových vozidel, také i pro případný vodní prvek na prostranstvím před garážemi a nebo pro užitkovou vodu potřebnou k údržbě vybavení a případně splachování WC a další.


 


© Atelier HRA. All rights reserved.