TURISTICKÁ ÚTULŇA HIKEMATES, 2021


Na vybrané miesto sme sa rozhodli umiestniť jednoduchý objekt - úkryt - citlivo zasadený

do krajiny. Pre návštevníka poskytuje hneď niekoľko funkcií a bez zbytočných príkras

vytvára bezpečný priestor.

Ideovo sme pracovali s témou koliby, ktorá dodnes svojim spôsobom slúži ako horské

obydlie. Tento archetypálny objekt je formálne i konštrukčne jednoznačný. Pracuje

so zakladným konštrukčným prvkom, ktorý sa stáva priamou súčasťou interiéru.

Znovubjavením a následnym pretvorením tradičnej zrubovej konštrukcie vytvárame

objekt, ktorý v sebe nesie stopu minulosti a zároveň prináša zážitok z priestoru. Priznaná

drevená konštrukcia vo svojej nahote pripomína utilitárnosť objektu.

Objekt útulne je zasadený v severnej časti lúky vedľa chaty Tŕstie, na mieste súčasnej

starej drevárne. Nie je stredobodom. Naopak. Z okraja lúky pozoruje obzor a nenarušuje

jedinečný výhľad na blízke i vzdialené vrcholy hôr.

 

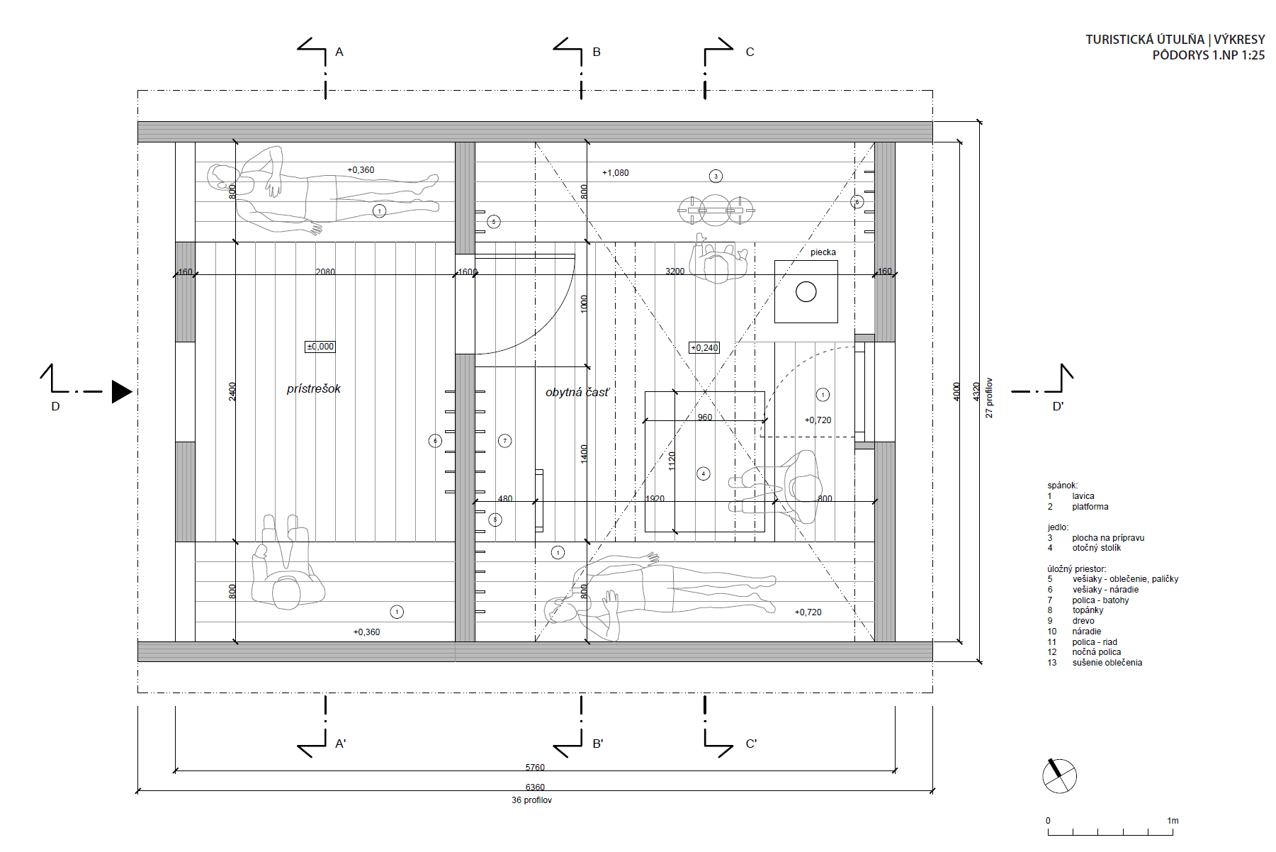
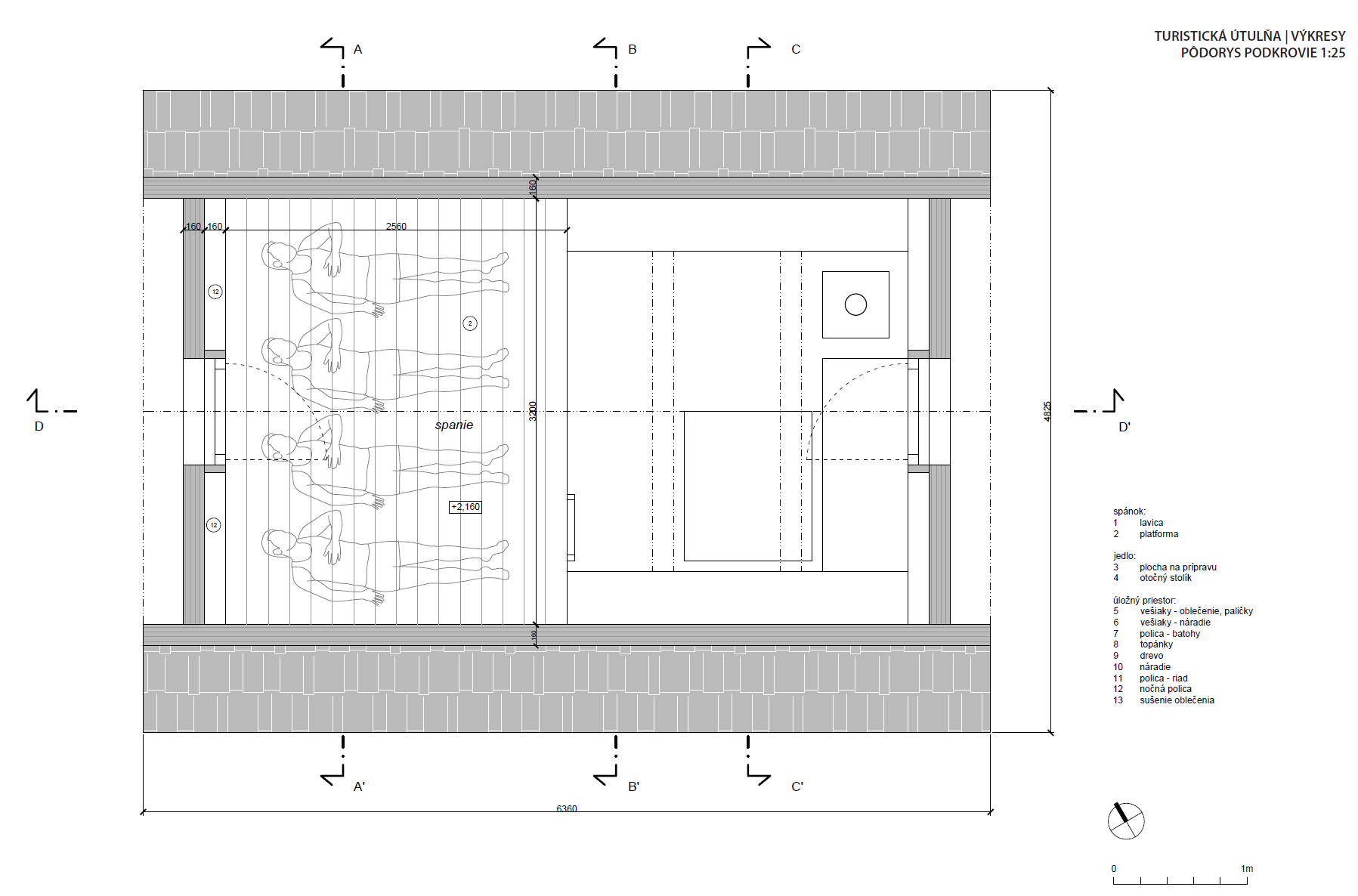
Útulňa stojí na nízkej kamennej podmurovke a je orientovaná štítom kolmo k terénu.

Základným stavebným prvkom samotného objektu je drevený hranol z červeného

smreku o rozmeroch 120x160mm. Jeho opakovaním a skladaním natupo v dvoch

smeroch vzniká obvodová konštrukcia, ktorá ostáva priznaná z vonkajšej aj vnútornej

strany. Vynechaním drevených hranolov v obvodovej konštrukcii sú vytvorené štrbiny,

ktoré do objektu vpúšťajú svetlo a vzduch a dodávajú stavbe jej jedinečný výraz. Rovnaké

stavebné prvky sú použité aj na členenie interiéru a “nábytok”, ktorý je tak pevnou

súčasťou stavby. Drevený hranol je tak dominantným výrazovým prvkom exteriéru aj

interiéru útulne. Zariadenie zostáva strohé, je trvácne a odolné voči poškodeniu. Ako

strešná krytina je použtý drevený šindeľ.

 

📸 AUTOR FOTOGRAFIÍ: HIKEMATES


© Atelier HRA. All rights reserved.